1 salle de bain
1 étage
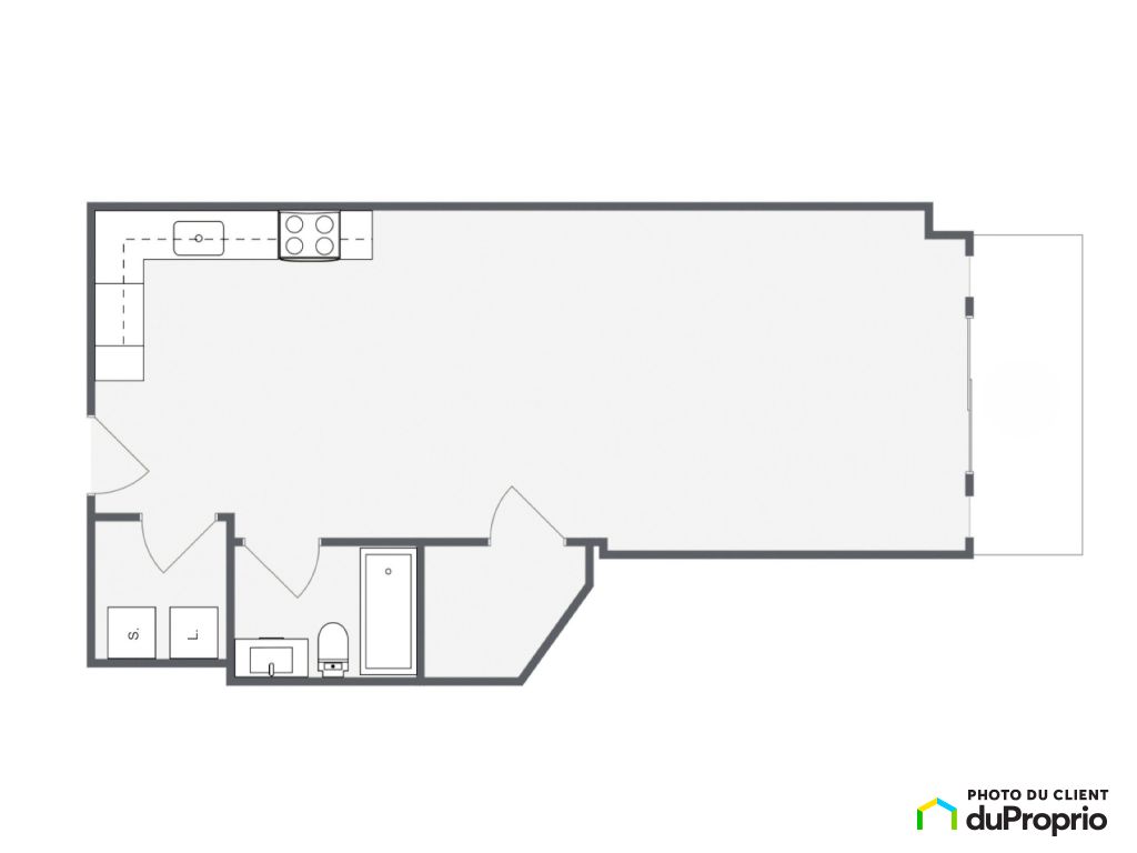
Aire habitable (s-sol exclu) 602 pi² (55.93 m²)

Remarques du proprio

Condo présentement en reconstruction, entièrement neuf.

Suite à un incendie survenu sur le toit de l'immeuble, l'eau utilisée pour maîtriser le feu s'est inflitrée dans tout le bâtiment. L'unité, comme toutes les autres, a été dégarnie, décontaminée et est présentement en cours de reconstruction par l'assureur. TOUT y sera neuf : plancher de bois franc et de céramique, cuisine, salle de bain et salle de lavage (cabinets, comptoirs, robinetterie et éclairage). La ventilation, la plomberie ainsi que l'électricité ont aussi été refait à neuf dans tout le bâtiment. Aussi, 12 luminaires encastrés seront ajoutés au plafond. 

La fin des travaux est prévue pour la fin du mois de mars 2026. Les photos affichées sur l'annonce ont été prises avant le sinistre. Des photos de l'avancement des travaux et des choix de finis pourront être fournis à la demande. 

Le condo à aire ouverte est situé dans le quartier Ahuntsic, à quelques pas de la Promenade Fleury. Tout près de plusieurs parcs et commerces, ce loft est facilement accessible en transport en commun via la station de métro Sauvé et à quelques minutes de voiture des principaux axes routiers. Stationnement facile dans la rue. 

  • Possibilité éventuelle de subdiviser l'espace.
  • Balcon situé au-dessus du niveau de la rue.
  • Locker partagé avec une autre unité au sous-sol.
Description complète
Description complète

Caractéristiques de la propriété

Droit de propriété
Divise
Situé à quel étage?
1
Style
Loft
Précisions
Entièrement rénové
Prix demandé
310 000 $
Évaluation municipale
241 500 $
Orientation de la cour
Nord-Ouest
Année de construction
2003

Parement extérieur:

  • Brique

Recouvrement de plancher:

  • Bois franc
  • Céramique

Type de chauffage:

  • Électricité
  • Plinthe
  • Thermopompe

Cuisine:

  • Armoires en mélamine fini grain de bois
  • Cuisinière électrique
  • Lave-vaisselle
  • Réfrigérateur

Équipements / Services inclus:

  • Air climatisé
  • Luminaires

Salle de bain:

  • Bain et douche

Rénovations effectuées:

  • Ajout
  • Armoires
  • Chauffage
  • Climatiseur
  • Cuisine
  • Électricité
  • Isolation
  • Parement extérieur
  • Peinture
  • Planchers
  • Plomberie
  • Portes
  • Salle d'eau
  • Salles de bain
  • Solage
  • Toiture

Environnement:

  • Accès à l'autoroute
  • Près d'un parc
  • Secteur paisible
  • Transport en commun

Près des commerces:

  • Bar
  • Centre d'achats
  • Institution financière
  • Pharmacie
  • Restaurant
  • Supermarché

Près des services de santé:

  • Centre de santé (spa / massage)
  • Centre médical
  • Dentiste
  • Hôpital

Près des services d'éducation:

  • CEGEP
  • École primaire
  • École secondaire
  • Garderie
  • Lycée
  • Maternelle
  • Université

Près des services de loisirs:

  • Bibliothèque
  • Casino
  • Centre sportif
  • Golf
  • Gym
  • Musée
  • Piscine
  • Piste cyclable

Près des services touristiques:

  • Hôtel
  • Aéroport
  • Port / Marina
  • Location de voiture

Liste complète des caractéristiques

Dimensions des pièces

Étage
Pièce
Dimensions
Plancher
Aire ouverte
Étage : Rez-de-chaussée
Dimensions : 13' x 37' 2" (3,96 m x 11,33 m)
Plancher : Bois franc
Balcon
Étage : Rez-de-chaussée
Dimensions : 5' x 11' 3" (1,52 m x 3,43 m)
Plancher : Autre
Espace de rangement
Étage : Rez-de-chaussée
Dimensions : 4' 4" x 7' 9" (1,32 m x 2,36 m)
Plancher : Bois franc
Salle de bain
Étage : Rez-de-chaussée
Dimensions : 5' 6" x 5' 3" (1,68 m x 1,6 m)
Plancher : Céramique
Salle de lavage
Étage : Rez-de-chaussée
Dimensions : 4' 11" x 9' (1,5 m x 2,74 m)
Plancher : Céramique

Les étapes d’achat d’une propriété

Un coup de cœur pour cette propriété? Voici un résumé des étapes à réaliser pour devenir propriétaire. Qu’on achète d’un particulier ou par l’entremise d’un courtier, ces étapes et les implications légales demeurent les mêmes.

1
Le financement

Au tout début des démarches, il est recommandé d’obtenir une préapprobation hypothécaire auprès de son institution financière. Le but est de connaître sa capacité d’emprunt, donc de savoir dans quelle fourchette de prix effectuer ses recherches.

2
L’offre d’achat

La propriété répond à notre budget et à nos besoins? Il faut maintenant déposer une offre d’achat. Le prix, les éléments à inclure, la date de prise de possession, les conditions d’achat et tous autres renseignements relatifs à la vente figurent dans ce document.

3
Les conditions d’achat

Cette offre d’achat est généralement assortie de conditions. Les plus courantes sont l’inspection, l’obtention d’une preuve de financement par l’acheteur et la vente de la propriété de ce dernier. Une fois ces conditions réalisées, la propriété est enfin considérée vendue.

4
Le transfert de la propriété

Passer chez le notaire est la dernière étape du processus d’achat et c’est généralement à l’acheteur de le choisir. Ce professionnel du droit immobilier se charge de rédiger l’acte de vente et veille au respect des intérêts de toutes les parties impliquées dans le dossier.

Une fois l’acte de vente notarié, le nouveau propriétaire reçoit enfin les clés de la maison! Il ne lui reste plus qu’à faire de cette demeure un nouveau chez-soi.

Plus de détails sur ces étapes

Consulter notre section Tout sur l’achat

Téléchargez les documents légaux qu’il vous faut

Rendez-vous dans votre compte DuProprio et accédez gratuitement aux documents légaux nécessaires pour votre transaction immobilière.

Voir les documents

Pas encore de compte? S’inscrire

310 000 $

Loft à vendre

102-1310, rue Sauvé est Ahuntsic / Cartierville Montréal / l'Île

N° 1083121

Entièrement rénové
Cette propriété vous intéresse?
Voici comment contacter le ou la propriétaire
Envoyer un message
Cette propriété vous intéresse?
Voici comment contacter le ou la propriétaire
Envoyer un message